产品列表
ZCG型中心传动刮泥机

概述
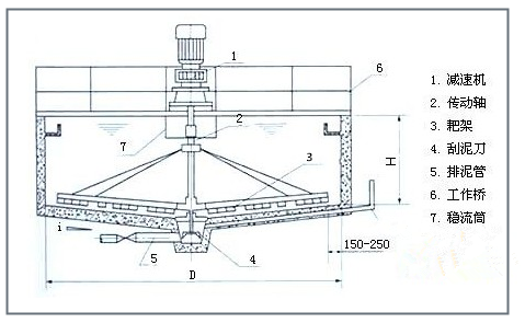
该系列刮泥机结构简单,整台刮泥机的载荷都作用在工作桥架的中心,由中心驱动机构带动刮集装置旋转,顶向刮板将沉淀池底的污泥刮集到中心集泥槽中,靠静水压力从污泥槽中排出。该机用于池径较小的辐流式沉淀池。
性能特点
1、结构简单,操作方便、刮泥效率高。
2、设置电气过载保护装置。
3、可选择使用提升装置,分为手动与电动。
技术参数
该系列刮泥机结构简单,整台刮泥机的载荷都作用在工作桥架的中心,由中心驱动机构带动刮集装置旋转,顶向刮板将沉淀池底的污泥刮集到中心集泥槽中,靠静水压力从污泥槽中排出。该机用于池径较小的辐流式沉淀池。
性能特点
1、结构简单,操作方便、刮泥效率高。
2、设置电气过载保护装置。
3、可选择使用提升装置,分为手动与电动。
技术参数
| 型号 |
池径D (m) |
池深 (m) |
周边线速度 (m/min) |
驱动功率 (KW) |
钢结构重量 (kg) |
| ZCG3 | 3 | 3 | 1~2 | 0.37 | 2500 |
| ZCG4 | 4 | 3.5 | 1~2 | 0.37 | 3200 |
| ZCG5 | 5 | 4 | 1~2 | 0.37 | 3800 |
| ZCG6 | 6 | 4 | 1~2 | 0.37 | 4000 |
| ZCG8 | 8 | 4.5 | 1~2 | 0.55 | 5000 |
| ZCG10 | 10 | 4.5 | 1.5~2.5 | 0.55 | 6000 |
| ZCG12 | 12 | 5 | 1.5~2.5 | 0.55 | 6800 |
| ZCG14 | 14 | 5 | 2~3 | 0.75 | 7600 |
| ZCG16 | 16 | 5 | 2~3 | 0.75 | 8300 |
| ZCG18 | 18 | 5 | 2~3 | 0.75 | 9100 |
外形示意图

控制系统为用户选用或自备,在现场接入电源即可使用。
现场电控箱上采用就地启停控制按钮,现场电控箱上设有设备的启动、停机按钮及启动、停机、事故信号灯。为节省能耗,所有信号灯都采用节能型,在电控箱内设有电动机保护器。控制柜可设PLC远程控制接口。本电控箱采用碳钢防腐或不锈钢外壳,室外防雨。
订货所需参数
1、刮泥机直径 2、材质要求
上一篇:网板式阶梯格栅除污机
下一篇:CG垂架式中心传动刮泥机



苏公网安备32028202232131号